Downsview Road, Bembridge, PO35 5QT
homeTerraced
bed3 Bedroom
bathtub1 Bathroom
£275,000

Summary

Offered for sale chain free, this modern home is situated within a popular residential area of Bembridge, perfectly located for easy access to the local shops, bus route and school, whilst also being within walking distance of the local beaches and coastal footpaths.

The well arranged accommodation comprises entrance hall, open plan living area incorporating a sitting room, dining room and kitchen, a conservatory, 3 bedrooms and a shower room.

Externally, the house is set around a communal green, meaning that it is nicely set back from the road. There is a lawned garden to the rear with gated access out to the parking area and garage.

This is a great opportunity to purchase an easy to maintain home which is naturally bright and airy throughout and is situated within a quiet residential street away from the business of the village centre.

Floors/rooms

Ground Floor

Entrance Hall - A double glazed front door gives access to the entrance hall which has stairs to the first floor, a telephone point, radiator and fitted carpet. Glazed door to:

Open Plan Living Area - A naturally bright living space which comprises:

Sitting Room - 15' 7'' x 12' 6'' (4.75m x 3.83m) Double glazed bow window to the front. 2 TV points, under stairs cupboard, radiator and wood flooring. Open through to:

Kitchen and Dining Room - 10' 10'' x 14' 9'' (3.31m x 4.52m) The kitchen is fitted with a range of wall and floor units with work surfaces over, an inset sink unit and tiled surrounds. Electric cooker point and fitted cooker hood, plumbing for a washing machine and tumble dryer, and space for a fridge freezer. Double glazed window to the rear and patio doors into the conservatory. Wall mounted Glow Worm gas boiler. Space for table and chairs. Telephone point, radiator and vinyl flooring.

Conservatory - 10' 6'' x 12' 9'' (3.21m x 3.89m) Double glazed construction with a dwarf brick wall, polycarbonate roof, windows to all sides and a door leading into the garden. Tiled flooring.

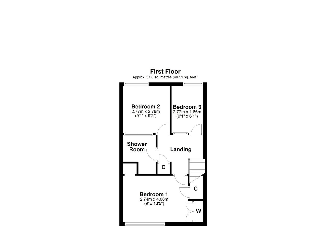
First Floor

Landing - Stairs from the hallway lead up to the first floor landing which has a built in cupboard, a high level window to the rear and fitted carpet. Accommodation off:

Bedroom 1 - 8' 11'' x 13' 4'' (2.74m x 4.08m) A double bedroom with a double glazed window to the front. Built in wardrobes and 2 built in cupboards. Telephone point, radiator and fitted carpet.

Bedroom 2 - 9' 1'' x 9' 1'' (2.77m x 2.79m) A double bedroom with a double glazed window to the rear. Radiator and fitted carpet.

Bedroom 3 - 9' 1'' x 6' 1'' (2.77m x 1.86m) Double glazed window to the rear. Radiator and fitted carpet.

Shower Room - Fitted with a tiled shower cubicle, a wash basin and a WC. High level window to the rear. Half height tiled walls, 2 heated towel rails and vinyl flooring.

Exterior

Outside - The house is set back from the road around a communal lawned green which is planted with trees.
An enclosed garden to the rear is laid to lawn and has gated rear access which leads to the garage.

Garage - An en bloc garage with an up and over door and parking to the front.

Additional Information - Heating: A gas fired boiler provides domestic hot water and heating via panelled radiators.
Tenure: Freehold
EPC rating: C
Council tax band: C

MISREPRESENTATION ACT 1967. PROPERTY MISDESCRIPTION ACT 1991.
Turnbull IOW Ltd, for themselves and Vendors of the property, whose agents they are, give notice that these particulars, although believed to be correct, do not constitute any part of an offer or Contract, that all statements contained in these particulars as to this property are made without responsibility and are not relied upon as statements or representations of fact and that they do not make or give any representation or warranty whatsoever to this business. An intending purchaser must satisfy himself by inspection or otherwise as to the correctness of each of the statements contained in these particulars.

Additional Information

For further information on this property please call 01983 874777 or e-mail [email protected]

EPC Graph

Interested in This Property?

01983 874777

[email protected]

Request a Viewing

Share this property:

Rightmove OnthemarketOmbudsman